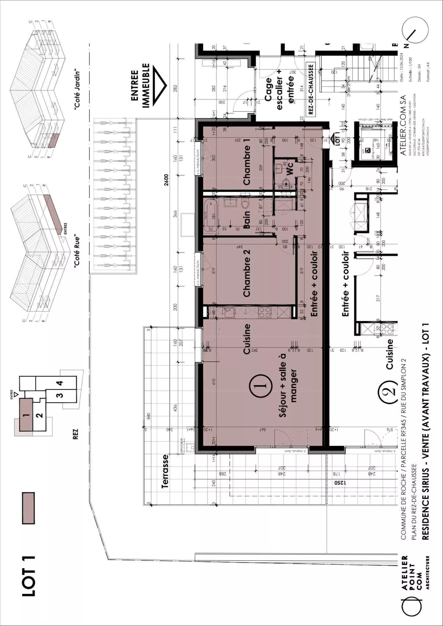
Appartement 3.5 pièces à Roche VD – Lot 1

CHF 725'000
A Roche VD,

Aperçu

  • Mis à jour le :
  • 06.05.2026
  • 2 Chambres
  • 2 Salles de bain
  • 84 m2

Description

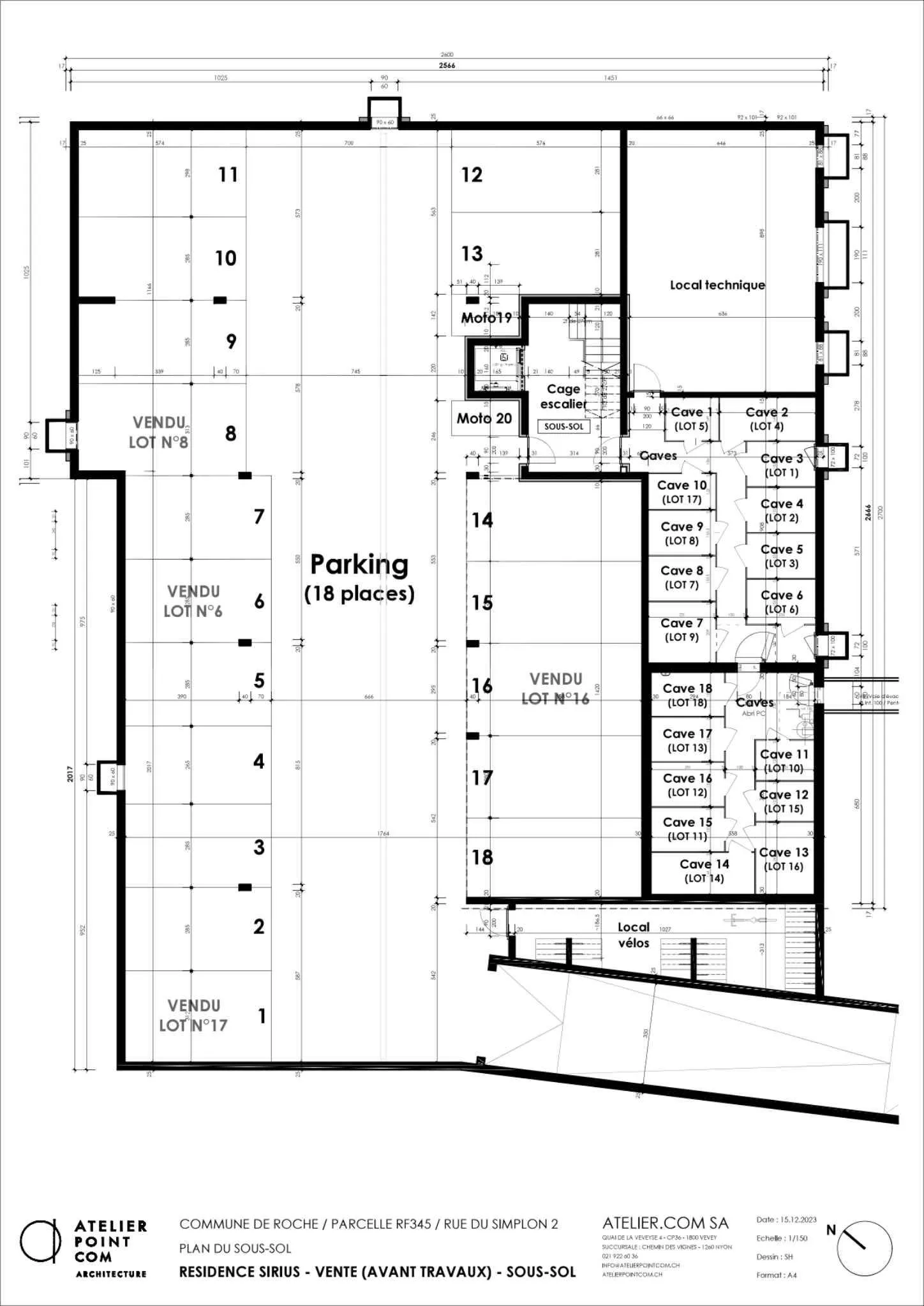
Dans une PPE de 18 appartements, cet appartement de 3.5 pièces au Rez avec jardin d’environ 70 m2 dispose d’une surface habitable de 84 m2 et d’une terrasse de 39 m2.

Il est composé comme suit :

– Hall d’entrée et couloir
– 2 chambres à coucher
– WC visiteurs
– Salle de bains
– Cuisine ouverte
– Séjour/salle à manger accès sur la terrasse
– Cave

Une place de parc intérieure est disponible en sus du prix à 35’000.-

Début des travaux février 2025.

Livraison automne 2026.

Lien vers le site web de la promotion : https://residence-sirius.ch/index.php

Adresse: A Roche VD
Ville:
Code postal: 1852
Pays: Suisse
Ouvrir dans Google Maps
Référence de l’annonce : 27449
Prix: CHF 725'000
Surface: 84 m2
Chambres: 3.5
Chambres: 2
Salles de bain: 2
Année de construction: 2026
Vente aux étrangers: non
Parking inclus dans le prix: non
Réf externe: 61328

Annonces similaires

Duplex familial avec jardin et triple exposi...

CHF 1'850'000
Situé au cœur du charmant village de Chavannes-des-Bois, ce spacieux appartement de 4,5 pi ...
4.5 3 176 m2détails
Vente

PORTES OUVERTES : mercredi 6 mai de 16h à 19...

CHF 1'915'000
Dans un cadre verdoyant, cette maison de ville de standing offre un cadre de vie idyllique ...
4.5 2 127 m2détails
Location

Très bel appartement au 9ème étage avec vue ...

CHF 1'830
Description 1 Beau 2.5 pièces au 9ème étage de la tour « INVICTUS » De tendance moderne et ...
2.5 1 51 m2détails
Location

Très bel appartement au 7ème étage avec vue ...

CHF 1'640
Beau 2.5 pièces au 7ème étage de la tour « INVICTUS » De tendance moderne et lumineux, ce ...
2.5 1 51 m2détails

Demande de dossier ou de renseignements

Comparer les annonces